Projecto de um Apartamento, no Barreiro, onde se procurou trazer luz natural ao espaço interior e levar o Cliente a utilizar o Logradouro Exterior. Um Projecto onde os pequenos apontamentos de cor e madeira procuraram equilibrar com um estilo moderno e leve.

HENRIQUE GALVÃO - Renovação de Apartamento

CLIENTE PRIVADO

ARQUITECTURA GEODESIC

Colaboração:

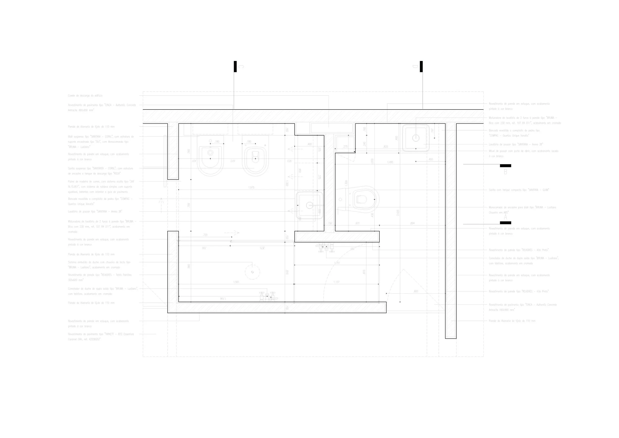
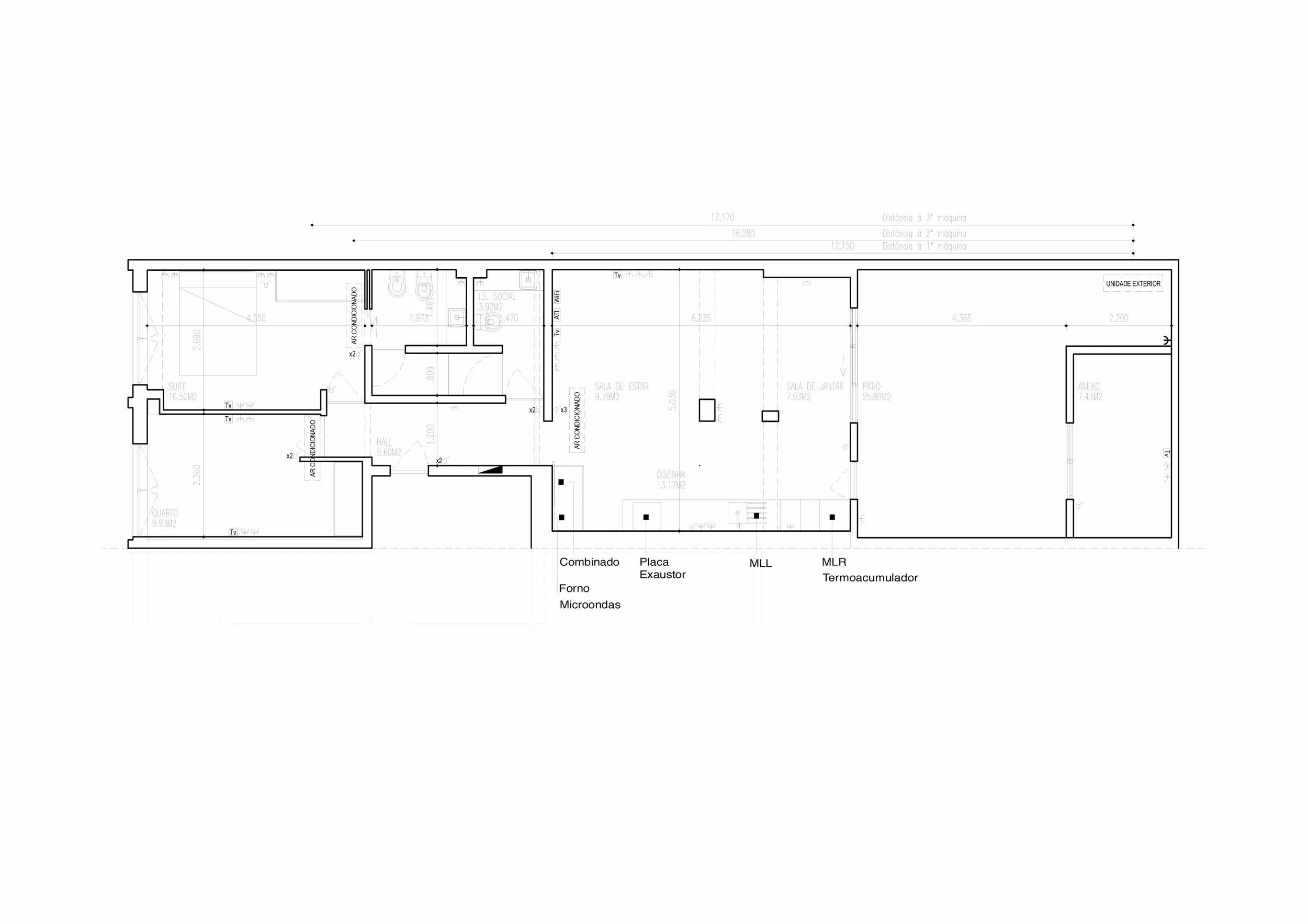
Estudo Prévio, Imagens 3D, Projecto de Execução, Compatibilização de Especialidades, Acompanhamento de Obra

ANO 2018

LOCALIZAÇÃO BARREIRO, Portugal

ESTADO Construído

ÁREA 109 m2

FOTOGRAFIA / RENDER Renato Franco

Previous
Previous

ARQUIA BANCA

Next
Next

António Granjo - Renovação de Apartamento